337

  • max. 4 Personen
  • 70
  • ab 71
    / Nacht


  • Ferienwohnung für 4 Personen
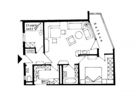
    Wohnung Familie Müller:
    Freuen Sie sich auf diese schöne 3-Zimmer-Wohnung mit der herrlichen Aussicht auf den Bodensee und die Alpenkette! In dieser schönen Wohnung finden auf 70 qm Wohnfläche 2 - 4 Personen bequem Platz. Die Wohnung ist geschmackvoll eingerichtet und mit allem ausgestattet, was Sie für Ihren unbeschwerten Urlaub benötigen:

    Wohnzimmer mit 2 Ledersofas, Essplatz am Fenster (Kabel-TV, WLAN, Stereo-Anlage), ein Schlafzimmer mit Doppelbett und Zugang zum Balkon, ein Schlafzimmer mit Etagenbett, separate Küche mit Herd/Backofen, Mikrowelle, Kühl-Gefrierschrank, Wasser- und Eierkocher, Bad komplett neu mit Dusche, Gäste-WC.

    Parkmöglichkeit am Haus, ein abgeschlossener Fahrradraum steht auch zu Ihrer Verfügung!
    Weitere Details auf unserer Homepage!
    • Nichtraucher
    • Kinderfreundlich
    • Aufzug
    • Haustiere auf Anfrage
    • Balkon
    • Garage / Carport
  • 2 Schlafzimmer
    Ein Schlafzimmer mit Doppelbett, Radiowecker, ein Schlafzimmer mit Etagenbett, auf Wunsch kostenlos Kinderbett und Hochstuhl.

  • WLAN kostenlos, TV, Radio
    Kabel-TV (Flachbildschirm), Stereoanlage, Spiele für die ganze Familie, Bücher, Landkarte und Reiseführer. Spielplatz am Haus.
    • Internet
    • WLAN kostenlos
    • TV
    • Radio
  • Küche
    Separate Einbauküche mit Herd/Backofen, Kühl-Gefrierschrank, Kaffeemaschine, Mikrowelle, Toaster, Wasserkocher, Eierkocher.
    • Kaffeemaschine
    • Mikrowelle
    • Wasserkocher
  • Bad mit Dusche
    Badezimmer komplett neu saniert - mit Dusche, Waschbecken, Fön, Kosmetikspiegel, separates WC.
    • mit Dusche
    • Fön

Preis


Reisezeit
 
Erwachsene
Kinder
  • Kalender
    Frei
    Belegt
    >
    Unterkunft
    Februar 2026
    DoFrSaSoMoDiMiDoFrSaSoMoDiMiDoFrSaSoMo
    3334
    29303112345678910111213141516
    4444
    29303112345678910111213141516
    3374
    29303112345678910111213141516
    4395
    29303112345678910111213141516

  • Unterkünfte
    333
    4     70 m²
    ab 71
    Nacht
    444
    4     70 m²
    ab 71
    Nacht
    337
    4     70 m²
    ab 71
    Nacht
    439
    5     102 m²
    ab 76
    Nacht
Gesamt  
  • Leistung
  • Preisliste
  • Mietinfo
Endreinigungim Preis enthalten
(in der 1. Nacht)


Nebenkosten

Strominklusive
Wasserinklusive
Heizunginklusive

Wäschepaket

mitbringen oder dazubuchen

Bettwäsche
8,00 €  optional pro Person
Hand- & Duschtücher
8,00 €  optional pro Person

Zusatzleistungen

Babybettinklusive
Internetinklusive
Kinderhochstuhlinklusive
Parkplatzinklusive
Hund10,00 €  pro Tag

Kontakt - Familie Sauer

Ferienwohnungen mit See- und Alpenblick


Telefon-Nr. anzeigen


Über uns

Herzlich willkommen liebe Feriengäste,

als reisefreudige Familie mit 2 mittlerweile erwachsenen Kindern haben wir schon viele Ferienwohnungen kennen gelernt. Wir wollen unseren Gästen jedoch nur das bieten, was wir selbst von einer guten Unterkunft erwarten.

Die mehr als 30-jährige Erfahrung in der Vermietung unserer Wohnungen und die vielen Stammgäste, die jedes Jahr wiederkommen, sprechen für sich!

Wir freuen uns auf Ihre Anfrage!

Familie Irmtraud und Manfred Sauer

Ferienwohnungen mit See- und Alpenblick
Familie Sauer
Unverbindlich anfragen
Direkter Kontakt mit schneller
Antwort vom Gastgeber